Parrock Avenue, Gravesend, Kent, DA12 1QQ

For Sale £425,000 - Freehold

4 2 2
Located on the highly sought-after Parrock Avenue in Gravesend, this four-bedroom terraced home offers spacious and versatile accommodation in a prime setting.

The ground floor features a welcoming entrance hallway, two generous reception rooms ideal for living and dining, and a kitchen to the rear opening onto a large, private garden.

The rear garden provides a peaceful outdoor space, perfect for relaxing or entertaining, and includes a detached garage offering flexibility as a workshop, home office or studio.

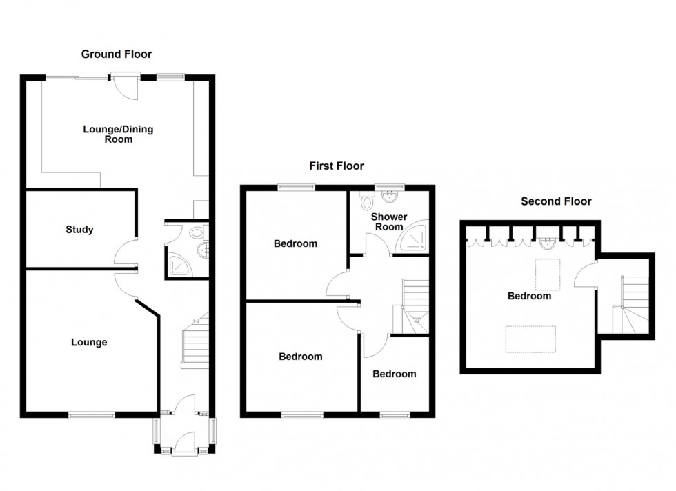
Upstairs, the first floor comprises two double bedrooms, a single bedroom and a family bathroom. The loft has been converted to create an additional double bedroom with its own bathroom, ideal as a main suite or guest space.

Conveniently located around one mile from Gravesend station, the property offers excellent access into London, along with nearby schools, amenities and green spaces.

Offered with no onward chain, this is a fantastic opportunity to secure a well-located family home with scope to personalise.

ENTRANCE HALL

LOUNGE 16'8" x 13'8"

DINING AREA 11'4" x 8'1"

SHOWER ROOM 5'8" x 5'1"

KITCHEN/DINER 18'7" x 14'5"

FIRST FLOOR LANDING

BEDROOM TWO 11'8" x 11'6"

BEDROOM THREE 11'5" x 10'6"

BEDROOM FOUR 8'2" x 7'9"

SHOWER ROOM TWO 9'2" x 6'3"

SECOND FLOOR LANDING

BEDROOM ONE 13'3" x 11'4"

DOUBLE GARAGE

FRONT AND REAR GARDENS

  • Four Bedroom Terrace House
  • Chain Free Purchase
  • Double Garage to Rear
  • EPC Rating TBC / Freehold /Council Tax Rating D
  • Set Over Three Floors
  • Sought After Location
  • Close To Town Centre & Mainline Station
  • A Real Must See
Floorplan for Parrock Avenue, Gravesend, Kent, DA12 1QQ
Similar Properties

Get an instant online valuation

Find out how much your property is worth